緑町2丁目モデルハウス

icon_pin 苫小牧市緑町2丁目34番38

緑町2丁目モデルハウススライダー画像
緑町2丁目モデルハウススライダー画像
緑町2丁目モデルハウススライダー画像
緑町2丁目モデルハウススライダー画像
緑町2丁目モデルハウススライダー画像
緑町2丁目モデルハウススライダー画像
緑町2丁目モデルハウススライダー画像
緑町2丁目モデルハウススライダー画像

段差のない快適な動線、家族とのつながりを感じられる空間、将来を見据えた安心の暮らし。 緑町2丁目に、平屋のモデルハウスがグランドオープンいたします。 都市ガスの高効率給湯「エコジョーズ」で、毎日の光熱費を賢く。 フルフラットキッチンは家族の会話を自然に生み、家事の負担も軽減します。

物件概要

  • 所在地

    苫小牧市緑町2丁目34番38

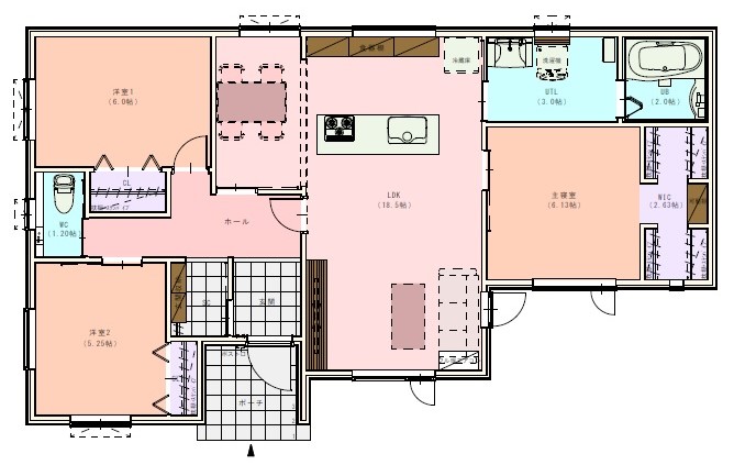
  • 間取り

    3LDK

  • 敷地面積

    190.61㎥(57.65坪)

  • 延床面積

    86.50㎥(26.37坪)

  • 用途地域

    第二種中高層住居専用地域

  • 地目

    宅地

  • 建ぺい率

    60%

  • 容積率

    200%

  • 接道

    西側8m公道に13.95m接道・北側6.5m公道に9.87m接道

  • 工法

    2×4

  • 構造

    木造

  • 仕様・設備

    -
  • 学校区

    小学校:苫小牧市立清水小学校(1.3㎞)徒歩16分 中学校:苫小牧市立開成中学校(800m)徒歩11分

  • 販売価格

    3,960万円(税込)

マップ・周辺施設

緑町2丁目モデルハウスサムネイル

緑町2丁目モデルハウス

  • 所在地

    苫小牧市緑町2丁目34番38

  • 公開情報

    10:00~17:00(水曜定休日) ※見学ご希望の方は事前にお問い合わせください。

メールアイコン

お問い合わせ

電話アイコン

お電話でのお問い合わせ

こちらのモデルハウスは販売も行っております。
ご興味のある方は一度ご連絡ください。

販売価格

3,960万円(税込)

来場予約フォーム

AJAX通信に失敗したか、nonceの検証に失敗しました。 このエラーが繰り返し発生する場合は、セキュリティ関連のプラグインによってアクセスがブロックされている可能性があります。 「公開ページでのAJAX通信のURLを選択」と「公開ページでのAJAX通信でNonceの値の検証で使う関数を選択」の値の変更をBooking Package > 一般設定で行ってください。

アカウント登録
ログアウト
プロフィールを編集
予約履歴
Subscribed items
新規登録
close
プロフィール
close
予約履歴
close
ID 予約日時 カレンダー 状態
予約の詳細
close
予約の詳細
サービスを選択してください
サービスの詳細
下記のアドレスに認証コードを送信しました。 認証コードを入力してください。
TOP

>

>

緑町2丁目モデルハウス

Contact